内容をスキップ
物件詳細 DETAIL

【倉敷市児島下の町 中古住宅】リフォーム済!大家族に最適!

前へ
次へ
NEW 商談中 中古住宅 倉敷市の中古(一戸建て)
更新
物件資料
所在地
倉敷市児島下の町4-9-68 周辺地図を見る
価格
25,800,000円
建物面積
1階 120.78㎡
2階  79.18㎡
合計 199.96㎡ 60.48坪
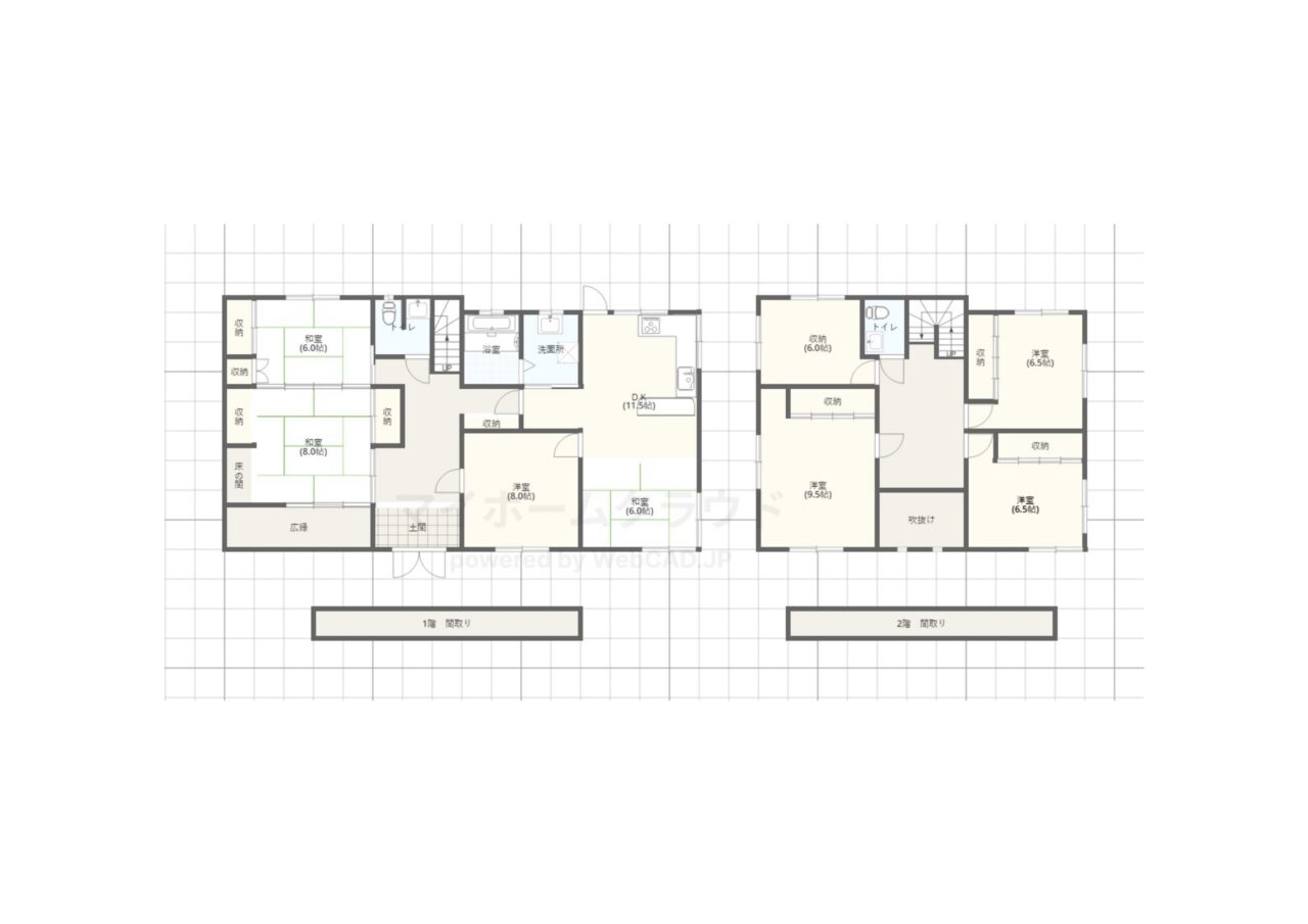
間取り
6LDK+S
土地面積
396.63㎡ 119.98坪
築年月
1988年6月22日 新築

・大家族もゆったり生活可能な6LDK
・リフォーム済
・不動産仲介手数料(約90万)不要

・駐車場2台可能
・倉庫あり(41.48㎡)

地図・周辺環境 MAP

物件情報 INFORMATION

価格
25,800,000円
所在地
倉敷市児島下の町4-9-68
間取り
6LDK+S
建物面積
1階 120.78㎡
2階  79.18㎡
合計 199.96㎡ 60.48坪
土地面積
396.63㎡ 119.98坪
坪単価
構造
木造瓦葺2階建て
築年月
1988年6月22日 新築
駐車場
2台可能
土地権利
所有権
地目
宅地
土地持分
全部
私道負担
無し
セットバック
無し
都市計画
市街化区域
用途地域
第1種住居地域
法令制限
建築基準法第22条区域
容積率
200%
建ぺい率
60%
設備
・上水道引込済(20mm)
・下水道引込済
・プロパンガス
接続道状況
南側公道6m
学区
琴浦西小学校
現状
空家
引渡
相談
取引形態
売主
手数料
無し
備考
固定資産税 112,893円
更新日
2025月11年16日
お客様の不動産購入を支える3つの特徴 FEATURE
01

「大丈夫かな?」という不安を
解決できる専門的なアドバイス

「他社で住宅ローンに通らなかった」「中古住宅の間取りはどうするのが良いのか?」「変形地での間取りの提案」など、お客様の様々な不安や悩みに対し、住宅会社での長年の経験から得た知識を活かし、通常の不動産会社には出来ないアドバイスを行い解消します。

02

「聞いていない」というリスクを
0にする徹底した事前調査

不動産購入をする際に大切なことは「トラブルを防ぐ」ことです。
そのために、役所・法務局に足を運び、家を建てても問題がないかの確認やリフォームの際に制限はないかの確認などの調査はもちろん、現地まで足を運び近隣調査を行い、トラブル0を実現しています。

03

「どうしたらいいかわからない」
に向き合う人間力

「住宅ローンに通らなかった」などの問題に対しても「本当にできることはないのか?」を様々な角度から考え、お客様にベストな提案を行い、後悔のない住宅や土地のご購入をサポートしています。

3つの安心を詳しく見る
購入の流れ FLOW
  1. 01

    自分たちが希望する条件を明確にする

    イメージ画像

    住みたい場所や購入する家のイメージ、そして購入時期をある程度決めておくことが重要です。
    これらが明確でないと、自分のニーズや希望を見失い、迷いが生じることで物件の絞り込みが難しくなります。

    また、予算に関しても、資金計画やライフプランをある程度把握しておくことが大切です。
    これらを事前にしっかりと把握しておくことで、効率的な物件探しや購入プロセスをスムーズに進めることができます。

  2. 02

    物件の情報収集

    イメージ画像

    希望する条件に近い物件のエリア情報をインターネットなどを用いて情報を集めましょう。
    また、資料請求が行える場合は、それを利用することをお勧めします。

    より早く簡単に希望条件に近い不動産物件を探したいという方は、ネクストライフ(086-436-7810)へまずはご相談ください!まだ掲載されていない新しい不動産や非公開の特別な物件もご用意しています。

  3. 03

    内覧会・現地見学

    イメージ画像

    気になる物件が見つかったら、物件の内覧を予約しましょう。

    内覧会や現地見学では実際の物件を見たり、現地に行くことで、写真や図面では伝わりにくかった部分を直接自分で確認することができます。さらに、周辺環境や立地条件を直接見ることで、近隣の交通アクセスや生活環境を理解することができ、自分がその物件に住んだ場合のイメージを具体的にすることもできます。

    また、内覧を行う際は、事前に「気になったこと」や「確認しておきたいこと」をあらかじめ家族で話し合い、メモしておき、担当者に質問しましょう。もちろん現地で気になったことも積極的に質問することをお勧めします。

  4. 04

    購入申込

    イメージ画像

    購入したい物件が決まったら当社、ネクストライフ(086-436-7810)へ連絡し、購入申込書を記入して購入の意思表示を行いましょう。
    購入にあたり何か心配事や、ご要望がある場合はこの時にご相談ください。

  5. 05

    住宅ローンの事前審査

    イメージ画像

    住宅ローンを利用されての購入の場合は、購入の意思が固まったら、利用する金融機関にて事前審査を進めていただきます。(※金融機関とのやり取りについても当社にご相談ください)
    金融機関から住宅ローンの融資を受けるには、自身の収入や過去の借り入れ状況などを踏まえて、審査の承認を得る必要があります。過去の支払い状況から、借入が難しいかどうかも事前審査で分かります。

    また、住宅ローンには様々なタイプがありますので、自分に合った金融機関や金利タイプを探しましょう。時間があれば、住宅ローンを扱っている金融機関に足を運び、できるだけ詳しく確認しておきましょう。
    その他、住宅ローンについてよく分からない方は、当社でお手伝いいたしますので、ご相談ください。

  6. 06

    不動産売買契約

    イメージ画像

    一般的な不動産売買では、購入申込の1週間から2週間前後に売買契約を結びます。
    その際には、売買契約についての重要事項説明を受けて物件について詳細に説明してもらいます。重要事項の説明の内容をよく理解しないまま契約して、トラブルに発展するケースもありますので、分からないことや不安なことがあれば、どんなささいなことでも構いませんので積極的に質問しましょう。

    そのうえで、問題がなければ、不動産売買契約を結んで手付金を支払います。

  7. 07

    残金の決済(お引渡し)

    イメージ画像

    契約金額から手付金を引いた残金分が、決済実行となる金額となります。住宅ローンでお支払いの場合は、事前に申込み決済に間に合うように金融機関と情報を共有しながら手続きを進めましょう。
    決済実行までに何か特定の条件を満たす必要がある場合は、決済前にそれらの条件が完了しているかを事前に確認しておきましょう。

    残代金の着金確認後に、お家のカギをお渡しし、お引渡しをさせていただきます。
    マイホームのご購入、おめでとうございます!
    その日から新しいお家での生活をスタートできますね。

この物についてお問い合わせ CONTACT

この物件についてお問い合わせ、ご質問のある方はこちらから受け付けております。

お電話でのお問い合わせ

086-436-7810
受付時間 10:00~18:00
/
定休日 水曜日

フォームでのお問い合わせ

必要事項をご入力し「送信する」ボタンを押してください。

  • ※通常は、2営業日以内にご返信させていただいております。
  • ※水曜日、弊社休業日にいただいたお問い合わせにつきましては、翌営業日以降の回答とさせていただきます。 また、お問い合わせの内容によりましては、お返事にお時間をいただく場合やお返事いたしかねる場合がございます。予めご了承ください

    必須

    必須

    必須

    必須

    住所


    必須

    お店(ネクストライフ)に行きたい周辺環境について知りたいこの物件に類似した物件を紹介してほしい物件を見学したい購入に関して相談したい見学会などあったら教えてほしいその他

    必須

    電話メール

    未入力の必須項目を確認してください。

    このサイトはreCAPTCHAによって保護されており、Googleのプライバシーポリシー利用規約が適用されます。

    同エリアの物件 SIMILARITY
    学区
    茶屋町小学校
    【倉敷市茶屋町早沖土地】人気の茶屋町エリアの広々約90坪!隣地建物無く快適な生活が実現!
    値下げ 倉敷市の土地(売地) 商談中 土地
    更新

    【倉敷市茶屋町早沖土地】人気の茶屋町エリアの広々約90坪!隣地建物無く快適な生活が実現!

    所在地
    倉敷市茶屋町早沖612-1、612-2
    金 額
    17,988,300円
    土地面積
    300.35㎡ 90.85坪
    坪単価
    198,000円
    学区
    玉島南小学校
    【倉敷市玉島柏島 中古住宅】高台の立地であり、水害の心配無し!コンパクトな住宅!仲介手数料不要!
    商談中 中古住宅 倉敷市の中古(一戸建て)
    更新

    【倉敷市玉島柏島 中古住宅】高台の立地であり、水害の心配無し!コンパクトな住宅!仲介手数料不要!

    所在地
    倉敷市玉島柏島6466-11
    金 額
    1,500,000円
    間取り
    3K
    築年月
    1973年7月31日 新築
    学区
    天城小学校
    【倉敷市藤戸町天城】コンパクトな住宅
    NEW 中古住宅 倉敷市の中古(一戸建て)
    更新

    【倉敷市藤戸町天城】コンパクトな住宅

    所在地
    倉敷市藤戸町天城246番地
    金 額
    7,800,000円
    間取り
    6DK
    築年月
    1974年10月7日 新築
    学区
    連島南小学校・連島南中学校
    【倉敷市連島町鶴新田 中古住宅】リフォーム完了!快適生活◎
    中古住宅 倉敷市の中古(一戸建て)
    更新

    【倉敷市連島町鶴新田 中古住宅】リフォーム完了!快適生活◎

    所在地
    倉敷市連島町鶴新田2148-6
    金 額
    13,990,000円
    間取り
    3LDK
    築年月
    1987年10月
    学区
    倉敷南小学校
    倉敷市中島 中古住宅
    中古住宅 倉敷市の中古(一戸建て)
    更新

    倉敷市中島 中古住宅

    所在地
    倉敷市中島2573番14
    金 額
    6,500,000円
    間取り
    3LDK
    築年月
    1975年9月
    学区
    菅生小学校
    【倉敷市青江 土地】倉敷の中心部!建物解体後引渡!
    値下げ 倉敷市の土地(売地) 商談中 土地
    更新

    【倉敷市青江 土地】倉敷の中心部!建物解体後引渡!

    所在地
    倉敷市青江902-3
    金 額
    9,721,600円
    土地面積
    200.89㎡ 60.76坪
    坪単価
    160,000円
    学区
    茶屋町小学校・東陽中学校
    【倉敷市帯高 中古住宅】茶屋町駅より徒歩15!リフォーム済み!
    中古住宅 倉敷市の中古(一戸建て)
    更新

    【倉敷市帯高 中古住宅】茶屋町駅より徒歩15!リフォーム済み!

    所在地
    倉敷市帯高759-32
    金 額
    33,990,000円
    間取り
    5SLDK
    築年月
    1994年8月
    学区
    第3福田小学校
    【倉敷市広江 中古住宅】高台の住宅地!部屋数も多い!
    中古住宅 倉敷市の中古(一戸建て)
    更新

    【倉敷市広江 中古住宅】高台の住宅地!部屋数も多い!

    所在地
    倉敷市広江6-12-10
    金 額
    9,800,000円
    間取り
    6DK
    築年月
    1973年1月20日新築
    1982年12月20日増築
    学区
    児島小学校
    【倉敷市児島小川町 中古住宅】築浅物件!ハイグレード住宅設備設置!
    中古住宅 倉敷市の中古(一戸建て)
    更新

    【倉敷市児島小川町 中古住宅】築浅物件!ハイグレード住宅設備設置!

    所在地
    倉敷市児島小川町4203-5
    金 額
    36,800,000円
    間取り
    4LDK
    築年月
    2025年1月10日新築
    学区
    長尾小学校
    【倉敷市玉島爪崎土地】新倉敷駅徒歩圏内!クリニック用地や事業用に!
    値下げ 倉敷市の土地(売地) 商談中 土地
    更新

    【倉敷市玉島爪崎土地】新倉敷駅徒歩圏内!クリニック用地や事業用に!

    所在地
    倉敷市玉島爪崎195-3,195-6
    金 額
    78,884,000円
    土地面積
    1,003㎡ 303.40坪
    坪単価
    260,000円
    学区
    倉敷市立柏島小学校
    【倉敷市玉島阿賀崎 中古住宅】収益物件にも◎!自宅建築も◎!
    中古住宅 倉敷市の中古(一戸建て)
    更新

    【倉敷市玉島阿賀崎 中古住宅】収益物件にも◎!自宅建築も◎!

    所在地
    倉敷市玉島阿賀崎2240-1
    金 額
    12,616,550円
    間取り
    ---
    築年月
    昭和44年
    学区
    柏島小学校
    【倉敷市玉島柏台 土地】高台の閑静な住宅地!水害等心配無し!
    倉敷市の土地(売地) 商談中 土地
    更新

    【倉敷市玉島柏台 土地】高台の閑静な住宅地!水害等心配無し!

    所在地
    倉敷市玉島柏台2-2-8
    金 額
    5,500,000円
    土地面積
    198㎡ 59.89坪
    坪単価
    91,835円
    学区
    万寿小学校
    【倉敷市日ノ出町 中古住宅】倉敷駅徒歩圏内!近隣駐車場あり!
    中古住宅 倉敷市の中古(一戸建て)
    更新

    【倉敷市日ノ出町 中古住宅】倉敷駅徒歩圏内!近隣駐車場あり!

    所在地
    倉敷市日ノ出町1-11-17
    金 額
    5,800,000円
    間取り
    5DK
    築年月
    1960年4月
    学区
    中島小学校
    【倉敷市中島 中古住宅】使い勝手良い間取り!綺麗に使用してます!
    中古住宅 倉敷市の中古(一戸建て)
    更新

    【倉敷市中島 中古住宅】使い勝手良い間取り!綺麗に使用してます!

    所在地
    倉敷市中島1832番26
    金 額
    26,800,000円
    間取り
    4LDK
    築年月
    2006年5月27日新築 
    学区
    第五福田小学校
    【倉敷市中畝 中古住宅】リフォーム完了!快適生活◎
    中古住宅 倉敷市の中古(一戸建て)
    更新

    【倉敷市中畝 中古住宅】リフォーム完了!快適生活◎

    所在地
    倉敷市中畝三丁目1-29
    金 額
    17,500,000円
    間取り
    3LDK
    築年月
    2021年1月
    学区
    上成小学校・玉島東中学校
    【倉敷市玉島 中古住宅】積水ハウス施工!リフォーム済み!
    NEW 中古住宅 倉敷市の中古(一戸建て)
    更新

    【倉敷市玉島 中古住宅】積水ハウス施工!リフォーム済み!

    所在地
    倉敷市玉島855-11
    金 額
    16,990,000円
    間取り
    3LDK
    築年月
    1981年2月
    学区
    琴浦東小学校・琴浦中学校
    【倉敷市児島田ノ口 中古住宅】住友林業施工!
    NEW 中古住宅 倉敷市の中古(一戸建て)
    更新

    【倉敷市児島田ノ口 中古住宅】住友林業施工!

    所在地
    倉敷市児島田ノ口7丁目6-28
    金 額
    19,990,000円
    間取り
    4SLDK
    築年月
    2004年7月
    学区
    旭丘小学校
    【倉敷市連島町連島 土地】アパート用地に◎住宅分譲地にも◎
    倉敷市の土地(売地) 商談中 土地
    更新

    【倉敷市連島町連島 土地】アパート用地に◎住宅分譲地にも◎

    所在地
    倉敷市連島町連島97-1,97-3
    金 額
    44,000,000円
    土地面積
    1,053㎡ 318.53坪
    坪単価
    138,134円
    学区
    船穂小学校
    【倉敷市船穂町船穂 中古住宅】二世帯住宅に◎広々建物で快適生活!
    商談中 中古住宅 倉敷市の中古(一戸建て)
    更新

    【倉敷市船穂町船穂 中古住宅】二世帯住宅に◎広々建物で快適生活!

    所在地
    倉敷市船穂町船穂3002-1
    金 額
    39,800,000円
    間取り
    5LDK+S
    築年月
    2005年7月11日新築
    前へ
    次へ

    掲載されていない新着不動産や特別な非公開物件あります!

    まだ掲載されていない新しい不動産や非公開の特別な物件もご用意していますので、気になる方はぜひお問い合わせください。
    お客様の叶えたいことやご要望に合わせて物件を探し、「後悔」のない理想の住まいをご提案いたします。

    お問い合わせ Page Top